ARCHITECTURE + URBAN DESIGN
260416 NW View_REV2.jpg

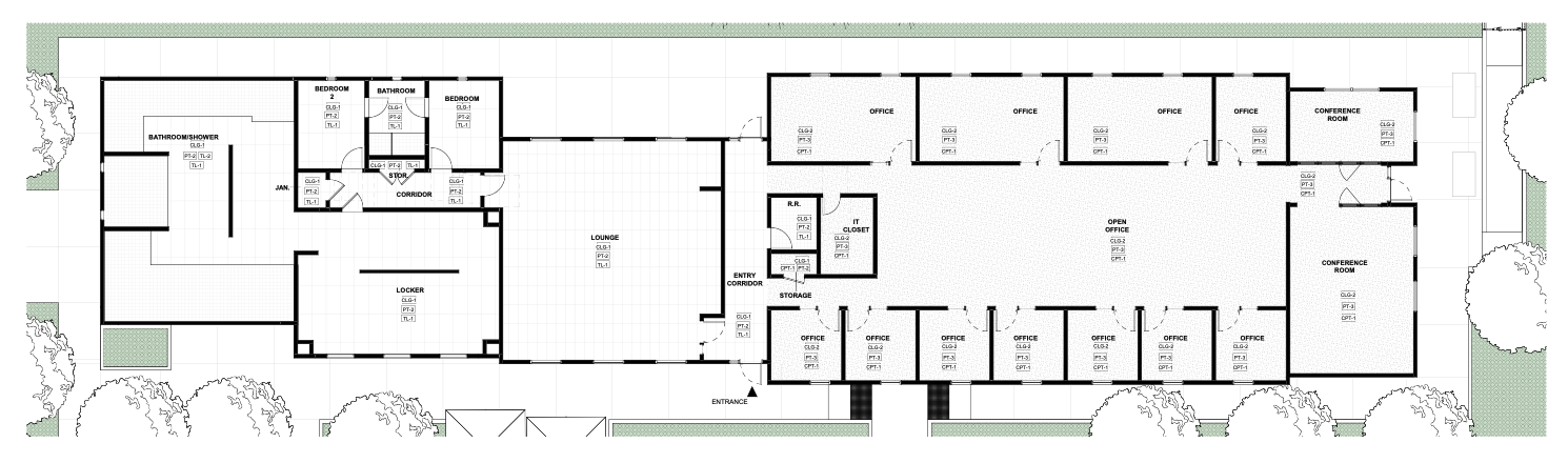
Santa Clarita Valley Water Agency Transmission and Distribution Office


Santa Clarita Valley Water Agency Tranmission and Distribution Office


Location
Santa Clarita, California

Client
RICK Engineering for the Santa Clarita Valley Water Agency

Project Status
In progress

 

JKA, working as a subconsultant to RICK Engineering was asked to perform base architectural services and construction administration for a new, approximate 7,250 SF Transmission and Distribution facility for the Santa Clarita Valley Agency. The new facility will support administrative and field staff, equipped with office space, a lounge, locker and restroom facilities, and two sleeping units. An “essential facility,” the building will be operational 24/7 to accommodate up to 50 total staff. Currently in design development, the project is anticipated to break ground in 2027.